Listing Tools

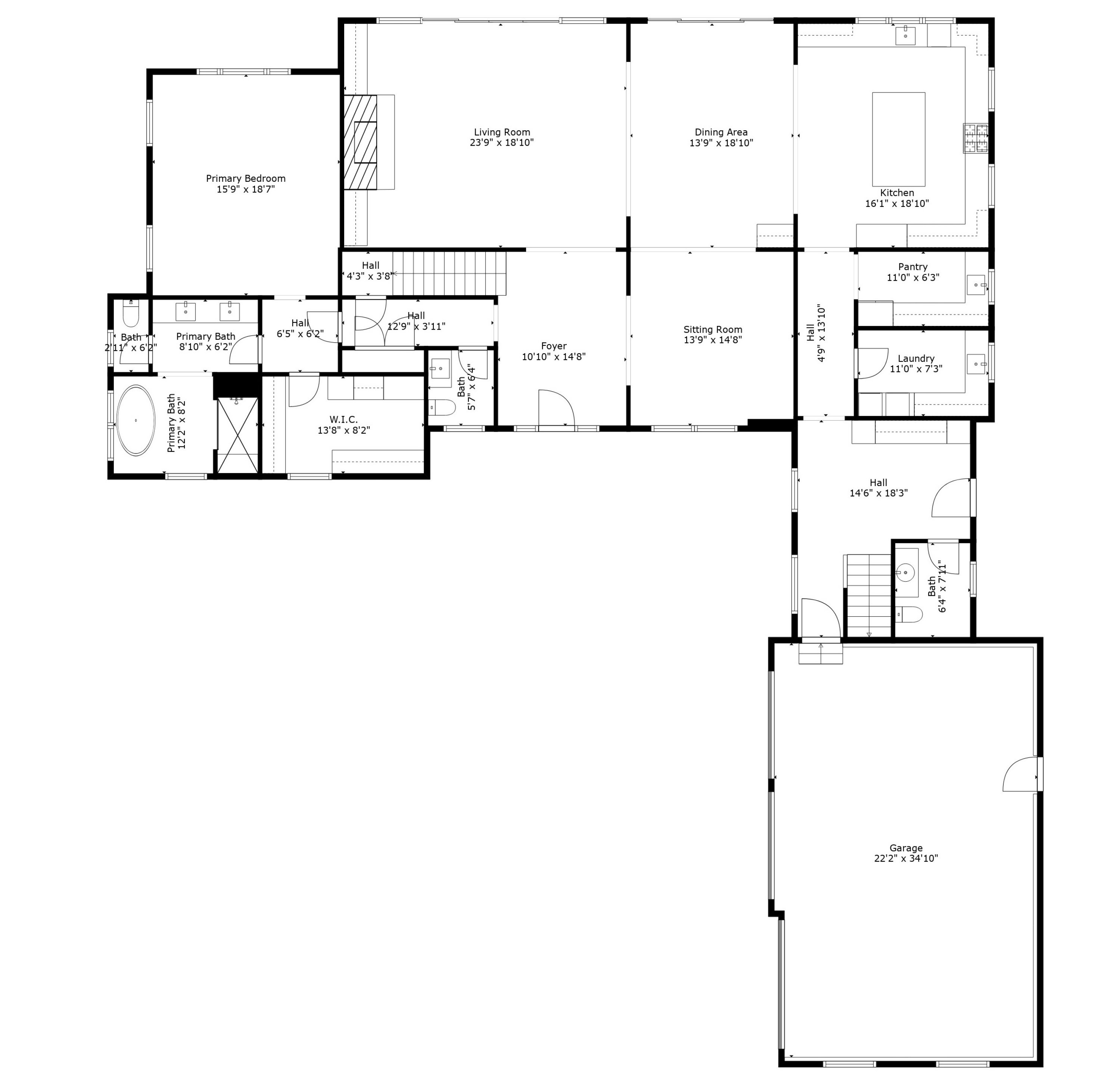
Pamper yourself and your family on this private Cotuit estate with the latest finishes in new construction. This contemporary-style Gambrel home, recalls the best of Cape Cod, and was designed for both beauty and function, featuring five-bedroom suites, including the Primary wing. Visible from multiple sliding glass doors and windows in the open floor plan is the salt-generated, heated pool with spa, & Cabana, with a kitchenette, grill area, and bathroom/shower beckoning you out to the private 2.24-acre yard. Or, if you're a beach person, take yourself to your private beach on Nantucket Sound where you can moor your boat. The floor plan flows from the custom kitchen through a dining area to the living room, with a stone surround on the gas fireplace. A wonderful surprise is the 3rd-floor family room with a comfy TV viewing station and a table for games for those stormy days, or long winter nights. A half bath and snack room make it convenient to stay the night. Two laundry rooms, one on the first floor, the other on the second, a pantry with a second fridge, and a large mudroom which leads to an in law suite above the garage. Mudroom has 2 built in kennels-a special property.
Listed by Kris Chalke of William Raveis Real Estate & Home Services

More Info

Location Information

  • Directions At the end of Main St, into the fenced road, take your second right to bring you to 444.

Basic Information

  • Lot Features Conservation Area, Level, North of Route 28
  • Parcel Number 16029004
  • Road Frontage DescriptionDirt

Tax Information

  • Tax Assessed Value $4,315,300
  • Tax Year 2025
  • Taxes$35,260

School Information

  • High School DistrictBarnstable

Parking

  • Attached Garage YN Yes
  • Open Parking YN Yes
  • Parking Spaces6

Rooms

  • Bathroom9
  • Bathrooms Total Decimal 7
  • Bedrooms5
  • Full Bath5
  • Half Baths4
  • Laundry Features First Floor
  • Main Level Bathrooms 3
  • Room Bedroom 2 Area 240
  • Room Bedroom 2 Features Recessed Lighting, Closet, Dressing Room, HU Cable TV, High Speed Internet, Private Full Bath
  • Room Master Bathroom Features Private Full Bath
  • Room Master Bedroom Features Cathedral Ceiling(s), Walk-In Closet(s), Recessed Lighting, High Speed Internet, HU Cable TV, Dressing Room, Closet, Ceiling Fan(s)

Basic Information

  • List Price$4,850,000
  • MLS Number22503960
  • Modification Date10/28/2025
  • Property SubTypeSingle Family Residence

Location

  • Address444 Vineyard Road
  • Building Number444
  • CountyBarnstable
  • StateMA
  • StreetVineyard Road
  • TownBarnstable
  • Zip02635

Building

  • BasementBulkhead Access, Interior Entry, Full
  • Building Area Units Square Feet
  • Door Features Sliding
  • Entry Level 1
  • Entry Location First Floor
  • FireplaceGas
  • Fireplace YN Yes
  • Fireplaces Total 1
  • FoundationConcrete Perimeter
  • Foundation Area 3,519
  • GarageYes
  • Patio And Porch Features Patio
  • Property StyleA-Frame, Gambrel
  • Rooms15
  • Year Built2023

Property

  • Acreage2.24
  • Other Structures Pool House, Gazebo

Interior

  • Flooring Wood, Tile
  • Interior Features Recessed Lighting, Pantry, Mud Room, Linen Closet, HU Cable TV
  • Room Bedroom 2 Description Flooring: Wood

Exterior

  • Exterior Features Outdoor Shower, Garden
  • Fencing Fenced, Partial
  • RoofWood

Utilities

  • Cooling Central Air
  • Cooling YN Yes
  • Heating YN Yes
  • Sewer Septic Tank
  • Water Source Well

Property Information

  • Living Area Units Square Feet
  • Lot Size Square Feet 97,574
  • Lot Size Units Acres
  • New Construction YN Yes
  • Property Condition Actual, New Construction
  • Square Feet7,354

Amenities

  • Appliances IncludedDishwasher, Washer, Range Hood, Security System, Refrigerator, Gas Range, Microwave, Electric Dryer, Gas Water Heater
  • Other AmenitiesBasement, Fireplace, Garden, Pool
  • Pool Features Gunite, In Ground, Heated
  • Pool Private YN Yes

Other

  • Date Listed08/15/2025
  • Spa Features Heated

Map Location

Driving Directions

Do not fill in this field:

I agree to receive marketing and customer service calls and text messages from Ermine Lovell Real Estate, LLC. To opt out, you can reply 'stop' at any time or click the unsubscribe link in the emails. Consent is not a condition of purchase. Msg/data rates may apply. Msg frequency varies. Privacy Policy.

This site is protected by reCAPTCHA and the Google Privacy Policy and Terms of Service apply.

Schedule A Visit

Schedule a Visit

I agree to receive marketing and customer service calls and text messages from Ermine Lovell Real Estate, LLC. To opt out, you can reply 'stop' at any time or click the unsubscribe link in the emails. Consent is not a condition of purchase. Msg/data rates may apply. Msg frequency varies. Privacy Policy.

This site is protected by reCAPTCHA and the Google Privacy Policy and Terms of Service apply.

broker reciprocity The data relating to real estate for sale on this site comes from the Broker Reciprocity (BR) of the Cape Cod & Islands Multiple Listing Service, Inc. Summary or thumbnail real estate listings held by brokerage firms other than Ermine Lovell Real Estate, LLC are marked with the BR Logo and detailed information about them includes the name of the listing broker. Neither the listing broker nor Ermine Lovell Real Estate, LLC shall be responsible for any typographical errors, misinformation, or misprints and shall be held totally harmless.

This site was last updated November 15, 2025 11:51 PM EST. All properties are subject to prior sale, changes, or withdrawal.

Ermine Lovell Real Estate, LLC has chosen to display only certain towns and/or types or styles of properties. This site may not show all listings that are available through the Cape Cod & Islands Multiple Listing Service, Inc.

Hi there! How can we help you?

Contact us using the form below or give us a call.

Send Us A Message:

I agree to receive marketing and customer service calls and text messages from Ermine Lovell Real Estate, LLC. To opt out, you can reply 'stop' at any time or click the unsubscribe link in the emails. Consent is not a condition of purchase. Msg/data rates may apply. Msg frequency varies. Privacy Policy.

Do not fill in this field:

This site is protected by reCAPTCHA and the Google Privacy Policy and Terms of Service apply.

Hi there! How can we help you?

Contact us using the form below or give us a call.

Send Us A Message:

Do not fill in this field:

This site is protected by reCAPTCHA and the Google Privacy Policy and Terms of Service apply.

Hi there! How can we help you?

Contact us using the form below or give us a call.

Send Us A Message:

Do not fill in this field:

This site is protected by reCAPTCHA and the Google Privacy Policy and Terms of Service apply.

Do not fill in this field:

This site is protected by reCAPTCHA and the Google Privacy Policy and Terms of Service apply.

Do not fill in this field:

This site is protected by reCAPTCHA and the Google Privacy Policy and Terms of Service apply.

Do not fill in this field:

This site is protected by reCAPTCHA and the Google Privacy Policy and Terms of Service apply.

$

Do not fill in this field:

This site is protected by reCAPTCHA and the Google Privacy Policy and Terms of Service apply.