Listing Tools

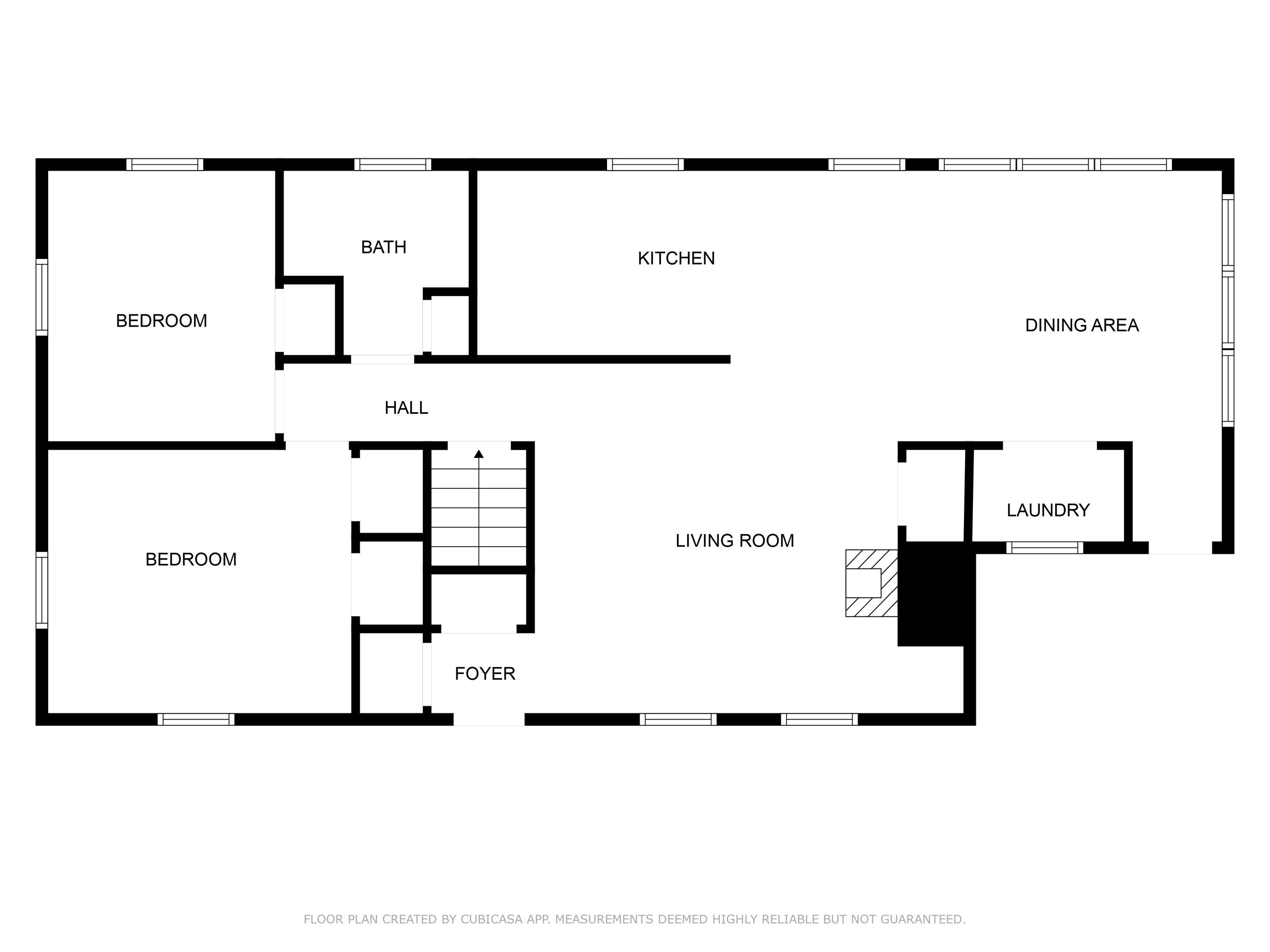
Located in the village of Marstons Mills, you find this lovely 3-bedroom 2 bath ranch, with the perfect combination of charm and elegance. An open layout provides for an abundance of light and great entertaining. From the stylish kitchen with Ilve gas range, granite counters, tile backsplash, and coffee bar, to the Livingroom with yellow pine floors, and Dining room with cathedral ceilings, you will feel right at home. 2 bedrooms, bathroom, and laundry room complete the first floor. The walkout lower level has a large bedroom, bathroom, and family room, providing for a great guest area or potential in-law area/ADU. The home is set off the road and the 1.26-acre lot gives great opportunity for expansion. Located close to Long Pond Conservation with community gardening, walking trails and fishing. A beautiful home!
Listed by Michael A Ewald of Stonewater Real Estate

More Info

Location Information

  • Directions From Marstons Mills Village take River Road 2 miles, left on Santuit-Newtown Rd #436.

Basic Information

  • Lot Features Conservation Area, Major Highway, Level, Cleared, Wooded
  • Parcel Number 30132
  • Road Frontage DescriptionPaved

Tax Information

  • Tax Assessed Value $501,800
  • Tax Year 2025
  • Taxes$2,493

School Information

  • High School DistrictBarnstable

Parking

  • Parking Spaces6

Rooms

  • Bathroom2
  • Bathrooms Total Decimal 2
  • Bedrooms3
  • Full Bath2
  • Laundry Features Laundry Room, First Floor
  • Main Level Bathrooms 1
  • Room Bedroom 2 Features Bedroom 2, Closet
  • Room Master Bedroom Features Closet, Ceiling Fan(s)

Basic Information

  • List Price$625,000
  • MLS Number22504308
  • Modification Date10/23/2025
  • Property SubTypeSingle Family Residence

Location

  • Address436 Santuit-newtown Road
  • Building Number436
  • CountyBarnstable
  • StateMA
  • StreetSantuit-newtown Road
  • TownBarnstable
  • Zip02648

Building

  • BasementFinished, Interior Entry, Full
  • Building Area Units Square Feet
  • Construction Materials Shingle Siding
  • Entry Level 1
  • Entry Location First Floor
  • FoundationPoured
  • Patio And Porch Features Deck
  • Property StyleRanch
  • Rooms7
  • Year Built1985

Property

  • Acreage1.26
  • Other Structures Outbuilding

Interior

  • Flooring Vinyl, Tile, Wood
  • Interior Features Recessed Lighting, Linen Closet
  • Room Bedroom 2 Description Flooring: Wood

Exterior

  • RoofAsphalt, Pitched

Utilities

  • Heating Hot Water
  • Heating YN Yes
  • Sewer Septic Tank

Property Information

  • Living Area Units Square Feet
  • Lot Size Square Feet 54,886
  • Lot Size Units Acres
  • Property Condition Updated/Remodeled, Approximate
  • Square Feet1,896

Amenities

  • Appliances IncludedDishwasher, Refrigerator, Gas Range, Gas Water Heater
  • Community Features Conservation Area
  • Other AmenitiesBasement, Garden

Other

  • Date Listed09/02/2025
  • Nitrogen Sensitive AreaYes

Map Location

Driving Directions

Do not fill in this field:

I agree to receive marketing and customer service calls and text messages from Ermine Lovell Real Estate, LLC. To opt out, you can reply 'stop' at any time or click the unsubscribe link in the emails. Consent is not a condition of purchase. Msg/data rates may apply. Msg frequency varies. Privacy Policy.

This site is protected by reCAPTCHA and the Google Privacy Policy and Terms of Service apply.

Schedule A Visit

Schedule a Visit

I agree to receive marketing and customer service calls and text messages from Ermine Lovell Real Estate, LLC. To opt out, you can reply 'stop' at any time or click the unsubscribe link in the emails. Consent is not a condition of purchase. Msg/data rates may apply. Msg frequency varies. Privacy Policy.

This site is protected by reCAPTCHA and the Google Privacy Policy and Terms of Service apply.

broker reciprocity The data relating to real estate for sale on this site comes from the Broker Reciprocity (BR) of the Cape Cod & Islands Multiple Listing Service, Inc. Summary or thumbnail real estate listings held by brokerage firms other than Ermine Lovell Real Estate, LLC are marked with the BR Logo and detailed information about them includes the name of the listing broker. Neither the listing broker nor Ermine Lovell Real Estate, LLC shall be responsible for any typographical errors, misinformation, or misprints and shall be held totally harmless.

This site was last updated November 15, 2025 11:51 PM EST. All properties are subject to prior sale, changes, or withdrawal.

Ermine Lovell Real Estate, LLC has chosen to display only certain towns and/or types or styles of properties. This site may not show all listings that are available through the Cape Cod & Islands Multiple Listing Service, Inc.

Hi there! How can we help you?

Contact us using the form below or give us a call.

Send Us A Message:

I agree to receive marketing and customer service calls and text messages from Ermine Lovell Real Estate, LLC. To opt out, you can reply 'stop' at any time or click the unsubscribe link in the emails. Consent is not a condition of purchase. Msg/data rates may apply. Msg frequency varies. Privacy Policy.

Do not fill in this field:

This site is protected by reCAPTCHA and the Google Privacy Policy and Terms of Service apply.

Hi there! How can we help you?

Contact us using the form below or give us a call.

Send Us A Message:

Do not fill in this field:

This site is protected by reCAPTCHA and the Google Privacy Policy and Terms of Service apply.

Hi there! How can we help you?

Contact us using the form below or give us a call.

Send Us A Message:

Do not fill in this field:

This site is protected by reCAPTCHA and the Google Privacy Policy and Terms of Service apply.

Do not fill in this field:

This site is protected by reCAPTCHA and the Google Privacy Policy and Terms of Service apply.

Do not fill in this field:

This site is protected by reCAPTCHA and the Google Privacy Policy and Terms of Service apply.

Do not fill in this field:

This site is protected by reCAPTCHA and the Google Privacy Policy and Terms of Service apply.

$

Do not fill in this field:

This site is protected by reCAPTCHA and the Google Privacy Policy and Terms of Service apply.