Listing Tools

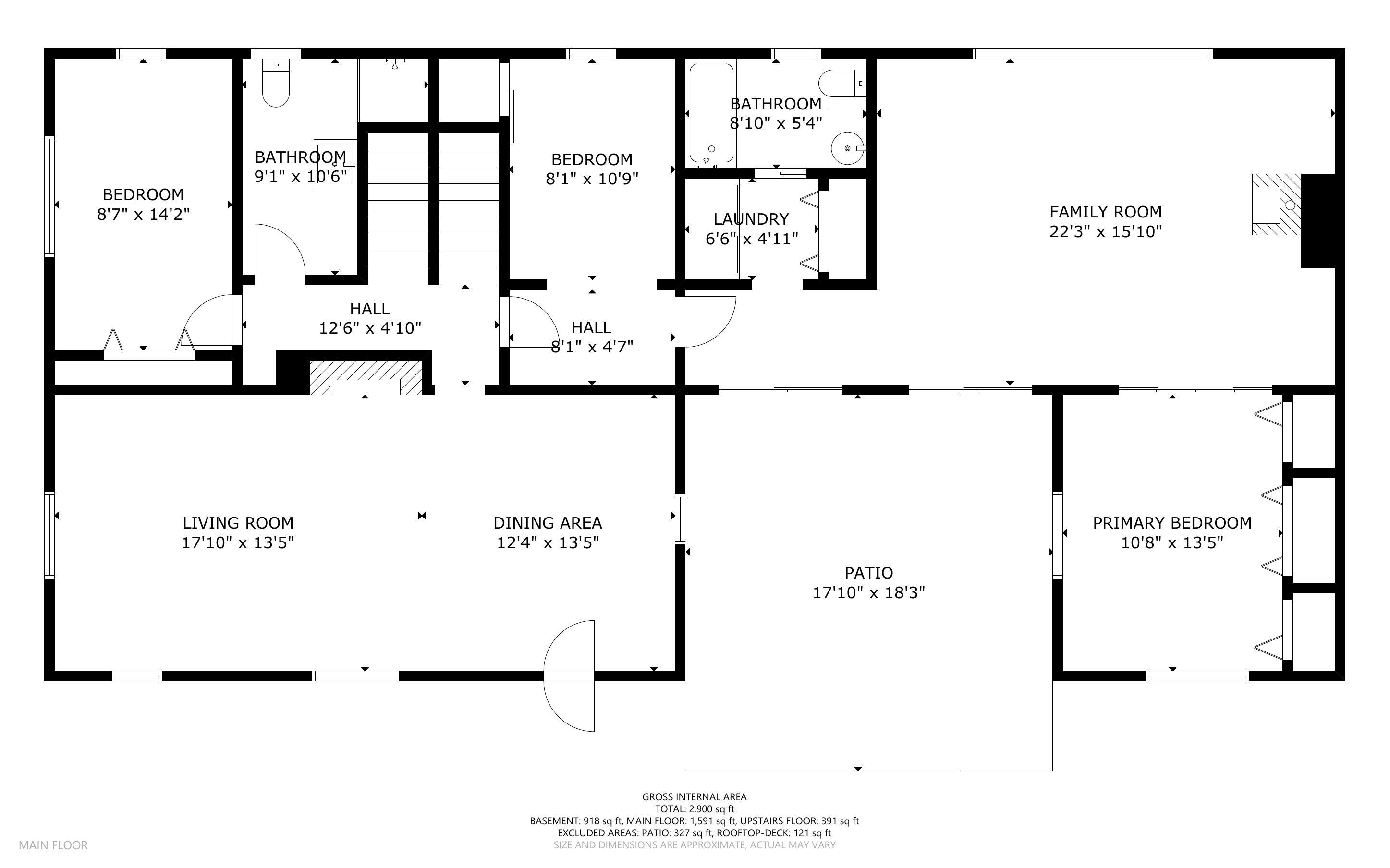
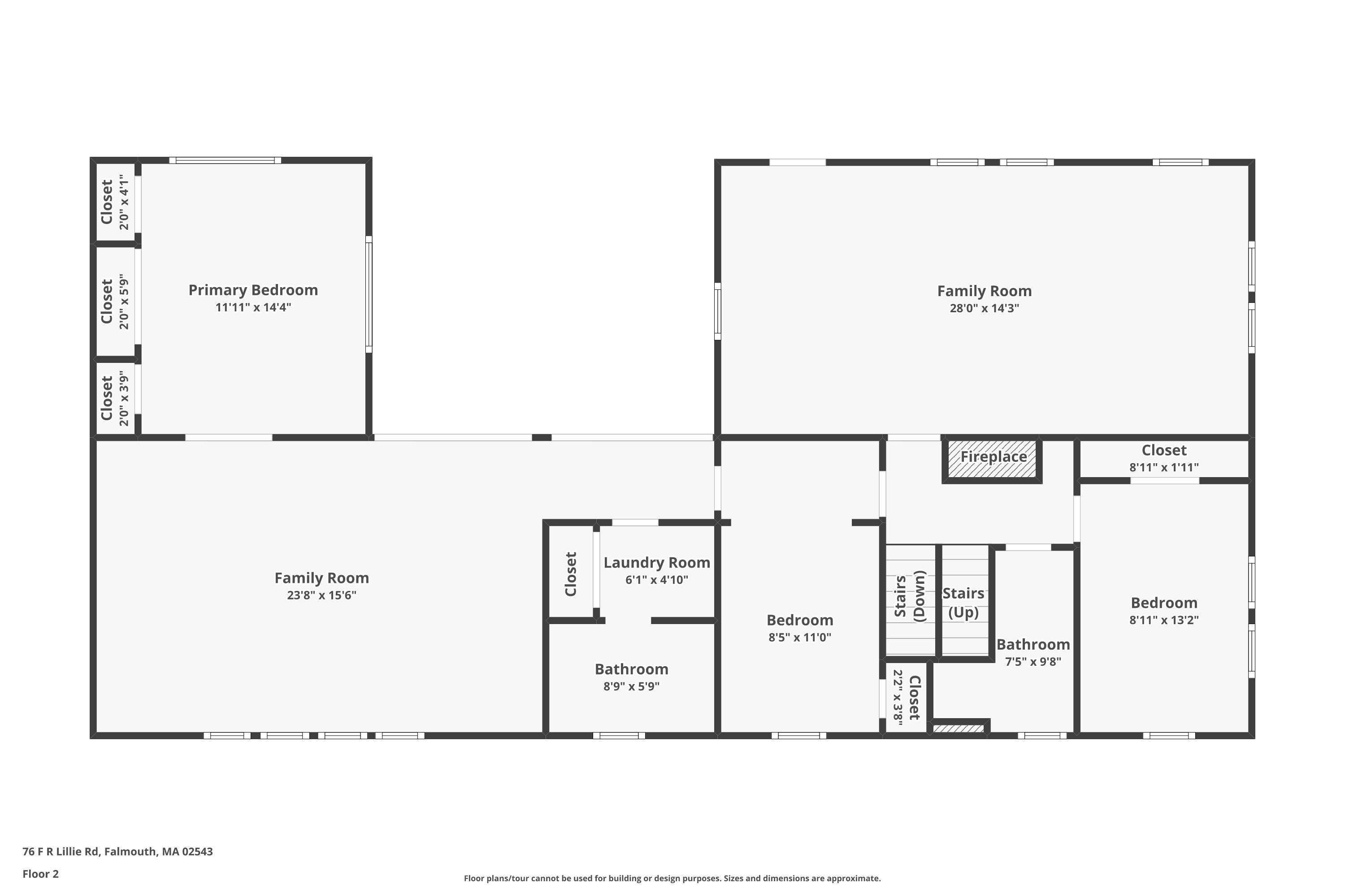
Escape to the seaside village of Woods Hole, where science is not just a profession, but a way of life. Offering a unique opportunity to live in a community dedicated to exploring and protecting our natural world.The moment you arrive, you'll be captivated by the home's charm. The spacious and versatile layout, featuring multiple living spaces. One provides space for quiet evenings, the other a wide two-storied hall for lively feasts, social gatherings and celebrations. The cozy ambiance is enhanced by two fireplaces and a wood stove, perfect for those crisp coastal nights. The primary suite is a true retreat, encompassing a bedroom, living room, and bathroom - a quiet private refuge that looks out on the extensive woods and back yard. The tiered backyard, perfectly nestled amongst the trees, is an ideal setting for large garden parties and outdoor entertaining. Large patios extend off the back deck, creating a seamless connection to the natural beauty. For breathtaking views, climb to the widows walk, where you'll be rewarded with stunning treetop vistas.Practical updates, including a new Title V septic system.
Listed by Amy E Vickers of EXIT Cape Realty

More Info

Location Information

  • Directions Woods Hole road to F.R.Lillie Road.

Basic Information

  • Lot Features
    • Bike Path
    • Conservation Area
    • House of Worship
    • Marina
    • Medical Facility
    • Near Golf Course
    • Shopping
    • Wooded
  • Parcel Number 50 04 000 051

Tax Information

  • Tax Assessed Value $867,500
  • Tax Year 2025
  • Taxes$5,056

School Information

  • High School DistrictFalmouth

Parking

  • Parking Features Shell
  • Parking Spaces6

Rooms

  • Bathroom2
  • Bathrooms Total Decimal 2
  • Bedrooms4
  • Full Bath2

Basic Information

  • List Price$1,200,000
  • MLS Number22504951
  • Modification Date10/16/2025
  • Property SubTypeSingle Family Residence
  • Virtual TourView Tour

Location

  • Address76 F R Lillie Road
  • Building Number76
  • CountyBarnstable
  • StateMA
  • StreetF R Lillie Road
  • TownFalmouth
  • Zip02540

Building

  • BasementInterior Entry, Partial
  • Building Area Units Square Feet
  • Construction Materials Shingle Siding, Stucco
  • Fireplace YN Yes
  • Fireplaces Total 3
  • FoundationBlock, Stone, Slab
  • Patio And Porch Features Deck, Other, Patio
  • Property StyleCottage
  • Rooms7
  • Year Built1950

Property

  • Acreage0.44

Interior

  • Flooring Hardwood, Tile, Wood
  • Interior Features Recessed Lighting

Exterior

  • Exterior Features Garden
  • Fencing Invisible
  • RoofAsphalt, Widow's Walk, Pitched

Utilities

  • Cooling Central Air
  • Cooling YN Yes
  • Heating YN Yes
  • Sewer Septic Tank

Property Information

  • Living Area Units Square Feet
  • Lot Size Square Feet 19,166
  • Lot Size Units Acres
  • Property Condition Updated/Remodeled, Actual
  • Square Feet1,969

Amenities

  • Accessibility Features Handicap Equipped, Handicap Access
  • Appliances IncludedGas Water Heater, Electric Water Heater
  • Other AmenitiesBasement, Fireplace, Garden, Golf

Other

  • Date Listed10/03/2025
  • Nitrogen Sensitive AreaYes
  • Special Listing Conditions Standard
  • View Count7

Map Location

Driving Directions

Do not fill in this field:

I agree to receive marketing and customer service calls and text messages from Ermine Lovell Real Estate, LLC. To opt out, you can reply 'stop' at any time or click the unsubscribe link in the emails. Consent is not a condition of purchase. Msg/data rates may apply. Msg frequency varies. Privacy Policy.

This site is protected by reCAPTCHA and the Google Privacy Policy and Terms of Service apply.

Schedule A Visit

Schedule a Visit

I agree to receive marketing and customer service calls and text messages from Ermine Lovell Real Estate, LLC. To opt out, you can reply 'stop' at any time or click the unsubscribe link in the emails. Consent is not a condition of purchase. Msg/data rates may apply. Msg frequency varies. Privacy Policy.

This site is protected by reCAPTCHA and the Google Privacy Policy and Terms of Service apply.

broker reciprocity The data relating to real estate for sale on this site comes from the Broker Reciprocity (BR) of the Cape Cod & Islands Multiple Listing Service, Inc. Summary or thumbnail real estate listings held by brokerage firms other than Ermine Lovell Real Estate, LLC are marked with the BR Logo and detailed information about them includes the name of the listing broker. Neither the listing broker nor Ermine Lovell Real Estate, LLC shall be responsible for any typographical errors, misinformation, or misprints and shall be held totally harmless.

This site was last updated November 7, 2025 11:21 PM EST. All properties are subject to prior sale, changes, or withdrawal.

Ermine Lovell Real Estate, LLC has chosen to display only certain towns and/or types or styles of properties. This site may not show all listings that are available through the Cape Cod & Islands Multiple Listing Service, Inc.

Hi there! How can we help you?

Contact us using the form below or give us a call.

Send Us A Message:

I agree to receive marketing and customer service calls and text messages from Ermine Lovell Real Estate, LLC. To opt out, you can reply 'stop' at any time or click the unsubscribe link in the emails. Consent is not a condition of purchase. Msg/data rates may apply. Msg frequency varies. Privacy Policy.

Do not fill in this field:

This site is protected by reCAPTCHA and the Google Privacy Policy and Terms of Service apply.

Hi there! How can we help you?

Contact us using the form below or give us a call.

Send Us A Message:

Do not fill in this field:

This site is protected by reCAPTCHA and the Google Privacy Policy and Terms of Service apply.

Hi there! How can we help you?

Contact us using the form below or give us a call.

Send Us A Message:

Do not fill in this field:

This site is protected by reCAPTCHA and the Google Privacy Policy and Terms of Service apply.

Do not fill in this field:

This site is protected by reCAPTCHA and the Google Privacy Policy and Terms of Service apply.

Do not fill in this field:

This site is protected by reCAPTCHA and the Google Privacy Policy and Terms of Service apply.

Do not fill in this field:

This site is protected by reCAPTCHA and the Google Privacy Policy and Terms of Service apply.

$

Do not fill in this field:

This site is protected by reCAPTCHA and the Google Privacy Policy and Terms of Service apply.