Listing Tools

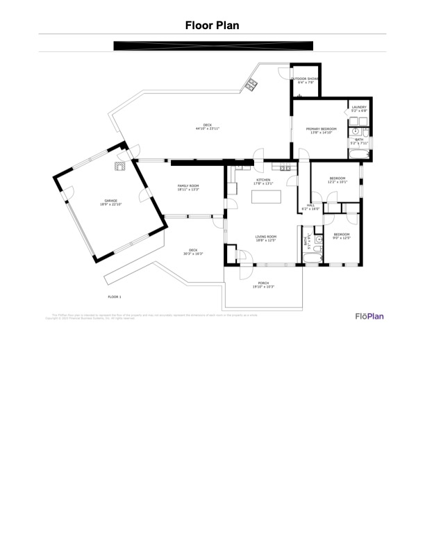
An Oceanfront property with sprawling views of the Atlantic Ocean. Imagine being so far East that you are one of the first to see the sunrise every morning! This 1,422 square foot home has three bedrooms, two full baths, an updated kitchen, and a two car garage. The primary bedroom has an ensuite bath, a walk-in closet with a washer & dryer and private access to the back deck. Located in the National Sea Shore and just minutes away from Nauset Light Beach. Experience the ocean at your fingertips, salt in the air, and the everlasting sound of rolling waves. A truly secluded get away. This oceanfront home is being sold as-is. As per town of Eastham, the well and leach field need to be relocated. Conservation is requiring an engineered plan for a deconstruction protocol on file. Buyers are responsible for complying with all orders of conditions in order to close. Do not walk the property without permission.
Listed by Matthew P Burger of Kinlin Grover Compass

More Info

Location Information

  • Directions Left off Cable Road onto Nauset Light Beach Road. At split, stay left and follow road till the end, turn right onto Brownell Road. Follow to the end,157 on the left.

Basic Information

  • Lot Features Conservation Area, Major Highway, Cape Cod Rail Trail, East of Route 6
  • Parcel Number EAST M:0023 L:0002
  • Road Frontage DescriptionUnimproved

Tax Information

  • Tax Assessed Value $374,300
  • Tax Year 2025
  • Taxes$2,886

School Information

  • High School DistrictNauset

Parking

  • Attached Garage YN Yes

Rooms

  • Bathroom2
  • Bathrooms Total Decimal 2
  • Bedrooms3
  • Full Bath2
  • Main Level Bathrooms 2
  • Room Bedroom 2 Features Bedroom 2, Ceiling Fan(s), Closet, Recessed Lighting
  • Room Master Bathroom Features Private Full Bath
  • Room Master Bedroom Features Laundry Areas, Walk-In Closet(s), Recessed Lighting, Closet, Ceiling Fan(s)

Basic Information

  • List Price$99,000
  • MLS Number22505272
  • Modification Date11/12/2025
  • Property SubTypeSingle Family Residence

Location

  • Address157 Brownell Road
  • Building Number157
  • CountyBarnstable
  • StateMA
  • StreetBrownell Road
  • TownEastham
  • Zip02642

Building

  • BasementBulkhead Access, Crawl Space
  • Building Area Units Square Feet
  • Construction Materials Shingle Siding
  • Door Features French Doors
  • FoundationBlock, Poured
  • GarageYes
  • Property StyleRanch
  • Rooms6
  • Window Features Bay/Bow Windows
  • Year Built1956

Property

  • Acreage0.49

Interior

  • Flooring Hardwood, Carpet
  • Room Bedroom 2 Description Flooring: Carpet

Exterior

  • Exterior Features Outdoor Shower
  • RoofAsphalt, Shingle

Utilities

  • Cooling Central Air
  • Cooling YN Yes
  • Heating YN Yes
  • Sewer Septic Tank, Private Sewer
  • Water Source Well

Property Information

  • Living Area Units Square Feet
  • Lot Size Square Feet 21,344
  • Lot Size Units Acres
  • Property Condition Actual
  • Square Feet1,422

Amenities

  • Appliances IncludedElectric Water Heater
  • Other AmenitiesBasement, Waterfront

Water Body

  • Water AccessPublic
  • Water Body NameAtlantic Ocean
  • Water Body TypeSalt
  • WaterfrontYes

Other

  • Date Listed10/20/2025
  • Special Listing Conditions Standard
  • View Count1

Map Location

Driving Directions

Do not fill in this field:

I agree to receive marketing and customer service calls and text messages from Ermine Lovell Real Estate, LLC. To opt out, you can reply 'stop' at any time or click the unsubscribe link in the emails. Consent is not a condition of purchase. Msg/data rates may apply. Msg frequency varies. Privacy Policy.

This site is protected by reCAPTCHA and the Google Privacy Policy and Terms of Service apply.

Schedule A Visit

Schedule a Visit

I agree to receive marketing and customer service calls and text messages from Ermine Lovell Real Estate, LLC. To opt out, you can reply 'stop' at any time or click the unsubscribe link in the emails. Consent is not a condition of purchase. Msg/data rates may apply. Msg frequency varies. Privacy Policy.

This site is protected by reCAPTCHA and the Google Privacy Policy and Terms of Service apply.

broker reciprocity The data relating to real estate for sale on this site comes from the Broker Reciprocity (BR) of the Cape Cod & Islands Multiple Listing Service, Inc. Summary or thumbnail real estate listings held by brokerage firms other than Ermine Lovell Real Estate, LLC are marked with the BR Logo and detailed information about them includes the name of the listing broker. Neither the listing broker nor Ermine Lovell Real Estate, LLC shall be responsible for any typographical errors, misinformation, or misprints and shall be held totally harmless.

This site was last updated November 15, 2025 11:51 PM EST. All properties are subject to prior sale, changes, or withdrawal.

Ermine Lovell Real Estate, LLC has chosen to display only certain towns and/or types or styles of properties. This site may not show all listings that are available through the Cape Cod & Islands Multiple Listing Service, Inc.

Hi there! How can we help you?

Contact us using the form below or give us a call.

Send Us A Message:

I agree to receive marketing and customer service calls and text messages from Ermine Lovell Real Estate, LLC. To opt out, you can reply 'stop' at any time or click the unsubscribe link in the emails. Consent is not a condition of purchase. Msg/data rates may apply. Msg frequency varies. Privacy Policy.

Do not fill in this field:

This site is protected by reCAPTCHA and the Google Privacy Policy and Terms of Service apply.

Hi there! How can we help you?

Contact us using the form below or give us a call.

Send Us A Message:

Do not fill in this field:

This site is protected by reCAPTCHA and the Google Privacy Policy and Terms of Service apply.

Hi there! How can we help you?

Contact us using the form below or give us a call.

Send Us A Message:

Do not fill in this field:

This site is protected by reCAPTCHA and the Google Privacy Policy and Terms of Service apply.

Do not fill in this field:

This site is protected by reCAPTCHA and the Google Privacy Policy and Terms of Service apply.

Do not fill in this field:

This site is protected by reCAPTCHA and the Google Privacy Policy and Terms of Service apply.

Do not fill in this field:

This site is protected by reCAPTCHA and the Google Privacy Policy and Terms of Service apply.

$

Do not fill in this field:

This site is protected by reCAPTCHA and the Google Privacy Policy and Terms of Service apply.