Listing Tools

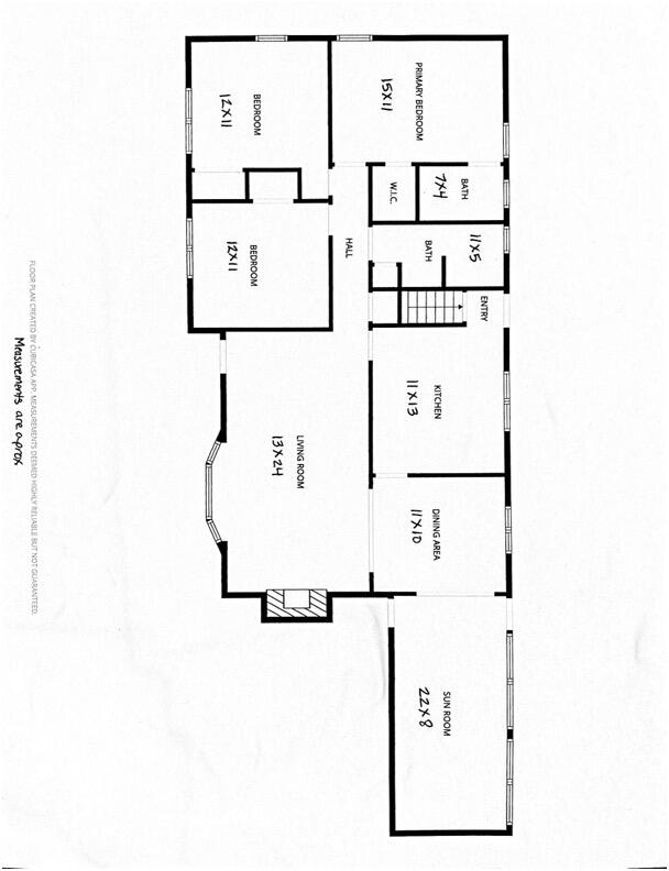
Coastal Getaway South of Route 28 - 3BR/3BA Ranch with Finished Basement & Outdoor Shower! Escape to the Cape in this charming 3-bedroom, 3-bath ranch located in a highly desirable coastal community south of Route 28. Just minutes from beautiful beaches and local shops, this home is the perfect year-round retreat or summer getaway. Featuring warm wood floors, a cozy wood-burning fireplace, and a spacious finished basement with three large bonus rooms and a full bath - there's plenty of room for guests, entertaining, or relaxing after a day in the sun. The outdoor shower makes beach days even easier, and the large lot offers exciting expansion possibilities. Additional highlights include a 2-car garage and a whole-house generator for added comfort and convenience. Whether you're looking for a relaxing escape or a home base near all the Cape has to offer, this one has it all. Start making memories by the shore - this is coastal living at its best!
Listed by Lisa J Damato of William Raveis Real Estate & Home Services

More Info

Location Information

  • Directions Lower County to Belmont or Rt 28 to BelmontHarwich/Dennis Line

Basic Information

  • Lot Features
    • Bike Path
    • Conservation Area
    • In Town Location
    • Level
    • Shopping
    • South of Route 28
  • Parcel Number HARW M:3 P:C71
  • Road Frontage DescriptionPaved

Tax Information

  • Tax Assessed Value $725,200
  • Tax Year 2023
  • Taxes$4,815

School Information

  • High School DistrictMonomoy

Parking

  • Attached Garage YN Yes
  • Parking Spaces2

Rooms

  • Bathroom3
  • Bathrooms Total Decimal 3
  • Bedrooms3
  • Full Bath3
  • Room Bedroom 2 Area 132
  • Room Bedroom 2 Features Bedroom 2
  • Room Master Bathroom Features Private Half Bath

Basic Information

  • List Price$875,000
  • MLS Number22505312
  • Modification Date11/04/2025
  • Property SubTypeSingle Family Residence

Location

  • Address148 Belmont Road
  • Building Number148
  • CountyBarnstable
  • StateMA
  • StreetBelmont Road
  • TownHarwich
  • Zip02671

Building

  • BasementBulkhead Access, Interior Entry, Full, Finished
  • Building Area Units Square Feet
  • Construction Materials Shingle Siding
  • FireplaceWood Burning
  • Fireplace YN Yes
  • Fireplaces Total 1
  • FoundationPoured
  • GarageYes
  • Property StyleRanch
  • Rooms6
  • Year Built1969

Property

  • Acreage1

Interior

  • Flooring Vinyl, Carpet, Wood
  • Room Bedroom 2 Description Flooring: Wood

Exterior

  • Exterior Features Outdoor Shower
  • RoofAsphalt

Utilities

  • Cooling Central Air
  • Cooling YN Yes
  • Heating Hot Water
  • Heating YN Yes
  • Sewer Septic Tank

Property Information

  • Living Area Units Square Feet
  • Lot Size Square Feet 43,560
  • Lot Size Units Acres
  • Property Condition Actual
  • Square Feet2,623

Amenities

  • Other AmenitiesBasement, Fireplace

Other

  • Date Listed10/22/2025
  • Nitrogen Sensitive AreaYes

Map Location

Driving Directions

Do not fill in this field:

I agree to receive marketing and customer service calls and text messages from Ermine Lovell Real Estate, LLC. To opt out, you can reply 'stop' at any time or click the unsubscribe link in the emails. Consent is not a condition of purchase. Msg/data rates may apply. Msg frequency varies. Privacy Policy.

This site is protected by reCAPTCHA and the Google Privacy Policy and Terms of Service apply.

Schedule A Visit

Schedule a Visit

I agree to receive marketing and customer service calls and text messages from Ermine Lovell Real Estate, LLC. To opt out, you can reply 'stop' at any time or click the unsubscribe link in the emails. Consent is not a condition of purchase. Msg/data rates may apply. Msg frequency varies. Privacy Policy.

This site is protected by reCAPTCHA and the Google Privacy Policy and Terms of Service apply.

broker reciprocity The data relating to real estate for sale on this site comes from the Broker Reciprocity (BR) of the Cape Cod & Islands Multiple Listing Service, Inc. Summary or thumbnail real estate listings held by brokerage firms other than Ermine Lovell Real Estate, LLC are marked with the BR Logo and detailed information about them includes the name of the listing broker. Neither the listing broker nor Ermine Lovell Real Estate, LLC shall be responsible for any typographical errors, misinformation, or misprints and shall be held totally harmless.

This site was last updated November 15, 2025 11:51 PM EST. All properties are subject to prior sale, changes, or withdrawal.

Ermine Lovell Real Estate, LLC has chosen to display only certain towns and/or types or styles of properties. This site may not show all listings that are available through the Cape Cod & Islands Multiple Listing Service, Inc.

Hi there! How can we help you?

Contact us using the form below or give us a call.

Send Us A Message:

I agree to receive marketing and customer service calls and text messages from Ermine Lovell Real Estate, LLC. To opt out, you can reply 'stop' at any time or click the unsubscribe link in the emails. Consent is not a condition of purchase. Msg/data rates may apply. Msg frequency varies. Privacy Policy.

Do not fill in this field:

This site is protected by reCAPTCHA and the Google Privacy Policy and Terms of Service apply.

Hi there! How can we help you?

Contact us using the form below or give us a call.

Send Us A Message:

Do not fill in this field:

This site is protected by reCAPTCHA and the Google Privacy Policy and Terms of Service apply.

Hi there! How can we help you?

Contact us using the form below or give us a call.

Send Us A Message:

Do not fill in this field:

This site is protected by reCAPTCHA and the Google Privacy Policy and Terms of Service apply.

Do not fill in this field:

This site is protected by reCAPTCHA and the Google Privacy Policy and Terms of Service apply.

Do not fill in this field:

This site is protected by reCAPTCHA and the Google Privacy Policy and Terms of Service apply.

Do not fill in this field:

This site is protected by reCAPTCHA and the Google Privacy Policy and Terms of Service apply.

$

Do not fill in this field:

This site is protected by reCAPTCHA and the Google Privacy Policy and Terms of Service apply.