Listing Tools

How can a property really be ''Better than New''? Come and see for yourself. #3 Pinefield has just undergone a TOTAL makeover where no attention to detail was overlooked. This Georgian Sea Captain's Colonial is perfectly situated in the South Dennis Historic Village and boasts beach rights to Grand Cove just steps down the road. In 2024, this home received an endless list of crafted improvements including: State of the art kitchen with all new high end cabinets, counters and appliances, new recessed lighting throughout, new mini split heat/AC, 3.5 newly renovated bathrooms, new high end TVs throughout, fresh paint, hardwood, tile, and some much more. The exterior also received its own makeover with extensive landscaping, hardscape work, outside shower, hot tub, lighting, new roof, gutters and sprinkler system. Am I missing anything? Probably! Now it is time for you to see for yourself. Home being sold fully furnished with ALL new furniture throughout all the way down to a fully outfitted kitchen. Currently on the Delmar Rental Program proving substantial rental numbers are easily obtainable if desired.
Listed by Christopher Coy of Realty Executives Cape Cod

More Info

Location Information

  • Directions Old Main Street to Pinefield Lane #3. Sewer constructions may cause you to enter via Center Street or 28 to Old Main.

Basic Information

  • Lot Features Conservation Area, Shopping, Level, Cleared
  • Parcel Number DENN M:000082 P:029000
  • Road Frontage DescriptionPaved

Tax Information

  • Tax Assessed Value $964,200
  • Tax Year 2025
  • Taxes$4,175

School Information

  • High School DistrictDennis-Yarmouth

Parking

  • Attached Garage YN Yes
  • Open Parking YN Yes
  • Parking Spaces4

Rooms

  • Bathroom5
  • Bathrooms Total Decimal 4.5
  • Bedrooms4
  • Full Bath4
  • Half Baths1
  • Laundry Features In Basement
  • Main Level Bathrooms 1
  • Room Bedroom 2 Features Recessed Lighting, Ceiling Fan(s)
  • Room Master Bathroom Features Private Full Bath
  • Room Master Bedroom Features Walk-In Closet(s), Recessed Lighting, Closet, Ceiling Fan(s)

Basic Information

  • List Price$1,495,000
  • MLS Number22505313
  • Modification Date11/04/2025
  • Property SubTypeSingle Family Residence

Location

  • Address3 Pinefield Lane
  • Building Number3
  • CountyBarnstable
  • StateMA
  • StreetPinefield Lane
  • TownDennis
  • Zip02660

Building

  • BasementFinished, Interior Entry, Full
  • Building Area Units Square Feet
  • Construction Materials Clapboard, Shingle Siding
  • Entry Level 1
  • Entry Location First Floor
  • Fireplace YN Yes
  • Fireplaces Total 1
  • FoundationPoured
  • Foundation Area 1,064
  • GarageYes
  • Patio And Porch Features Deck, Patio
  • Property StyleColonial
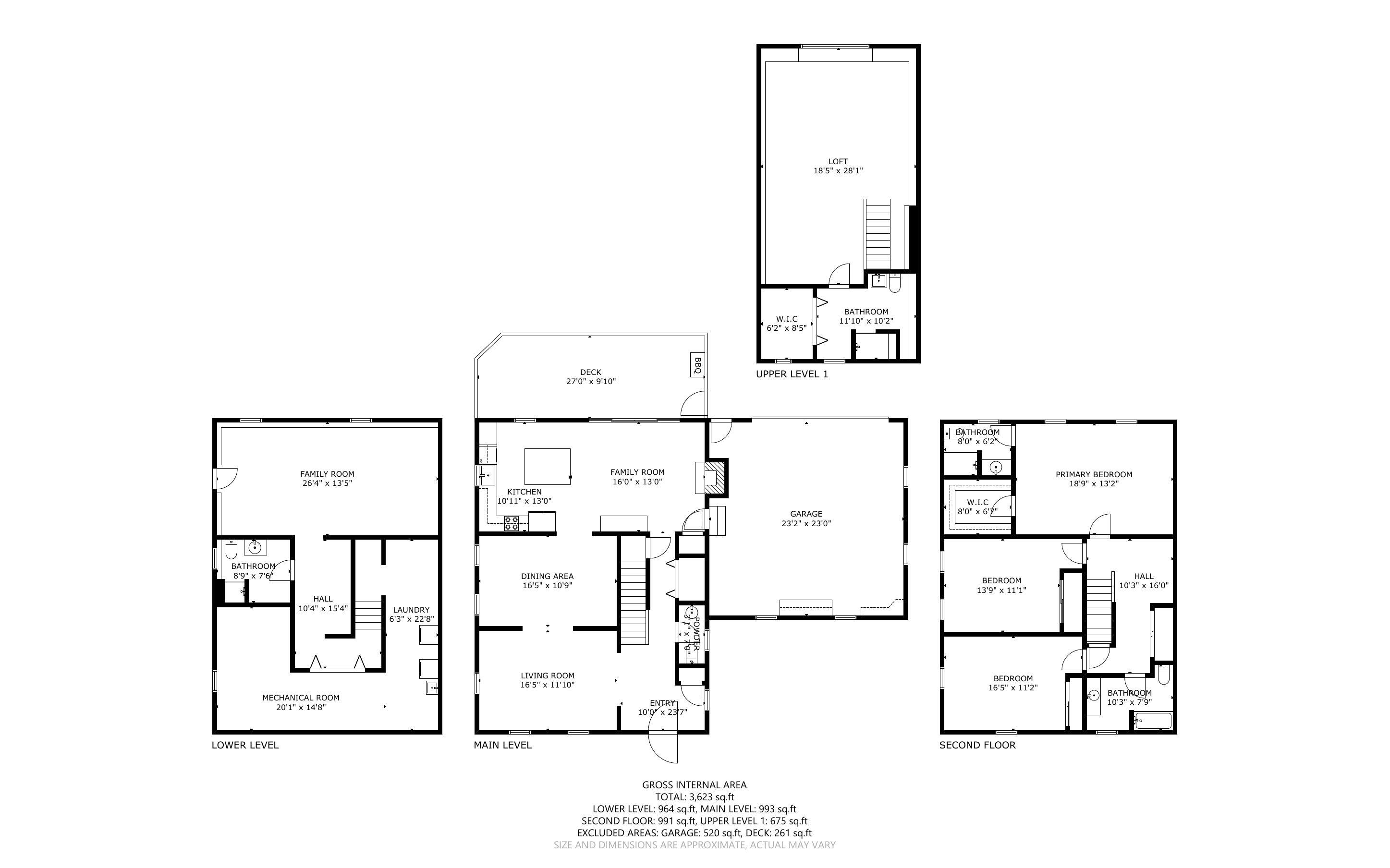
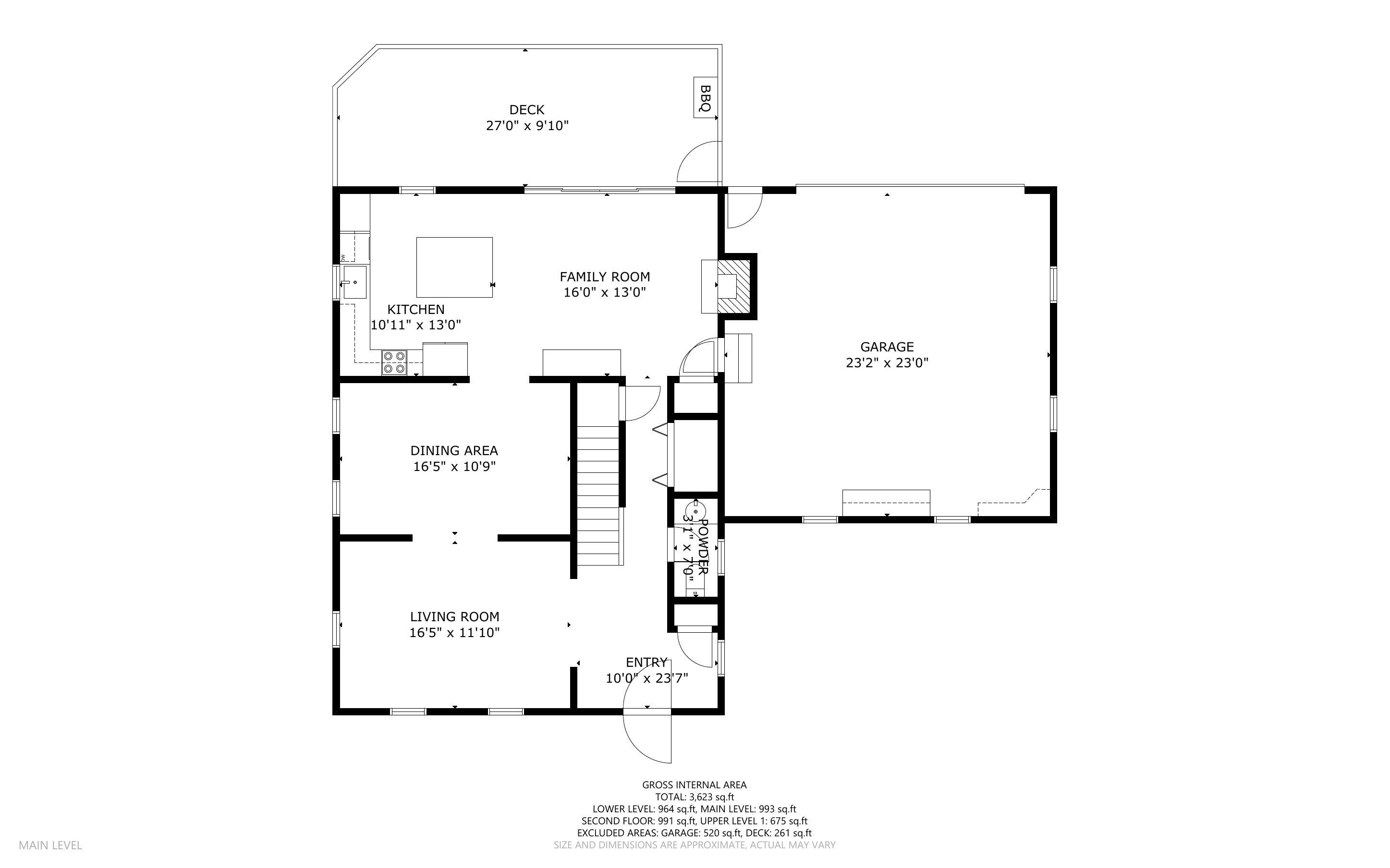
  • Rooms7
  • Year Built1994

Property

  • Acreage0.34

Interior

  • Flooring Hardwood, Carpet, Tile, Laminate
  • Interior Features Recessed Lighting, HU Cable TV
  • Room Bedroom 2 Description Flooring: Carpet

Exterior

  • Exterior Features Outdoor Shower
  • RoofAsphalt, Pitched

Utilities

  • Cooling YN Yes
  • Heating Hot Water
  • Heating YN Yes
  • Sewer Septic Tank

Property Information

  • Living Area Units Square Feet
  • Lot Size Square Feet 14,810
  • Lot Size Units Acres
  • Property Condition Updated/Remodeled, Approximate
  • Square Feet2,660

Amenities

  • Appliances IncludedDishwasher, Wall/Oven Cook Top, Range Hood, Refrigerator, Microwave, Gas Water Heater
  • Community Features Deeded Beach Rights, Conservation Area
  • Other AmenitiesBasement, Beachfront, Fireplace

Other

  • Date Listed10/22/2025
  • Nitrogen Sensitive AreaYes
  • Spa Features Heated

Map Location

Driving Directions

Do not fill in this field:

I agree to receive marketing and customer service calls and text messages from Ermine Lovell Real Estate, LLC. To opt out, you can reply 'stop' at any time or click the unsubscribe link in the emails. Consent is not a condition of purchase. Msg/data rates may apply. Msg frequency varies. Privacy Policy.

This site is protected by reCAPTCHA and the Google Privacy Policy and Terms of Service apply.

Schedule A Visit

Schedule a Visit

I agree to receive marketing and customer service calls and text messages from Ermine Lovell Real Estate, LLC. To opt out, you can reply 'stop' at any time or click the unsubscribe link in the emails. Consent is not a condition of purchase. Msg/data rates may apply. Msg frequency varies. Privacy Policy.

This site is protected by reCAPTCHA and the Google Privacy Policy and Terms of Service apply.

broker reciprocity The data relating to real estate for sale on this site comes from the Broker Reciprocity (BR) of the Cape Cod & Islands Multiple Listing Service, Inc. Summary or thumbnail real estate listings held by brokerage firms other than Ermine Lovell Real Estate, LLC are marked with the BR Logo and detailed information about them includes the name of the listing broker. Neither the listing broker nor Ermine Lovell Real Estate, LLC shall be responsible for any typographical errors, misinformation, or misprints and shall be held totally harmless.

This site was last updated November 7, 2025 10:51 PM EST. All properties are subject to prior sale, changes, or withdrawal.

Ermine Lovell Real Estate, LLC has chosen to display only certain towns and/or types or styles of properties. This site may not show all listings that are available through the Cape Cod & Islands Multiple Listing Service, Inc.

Hi there! How can we help you?

Contact us using the form below or give us a call.

Send Us A Message:

I agree to receive marketing and customer service calls and text messages from Ermine Lovell Real Estate, LLC. To opt out, you can reply 'stop' at any time or click the unsubscribe link in the emails. Consent is not a condition of purchase. Msg/data rates may apply. Msg frequency varies. Privacy Policy.

Do not fill in this field:

This site is protected by reCAPTCHA and the Google Privacy Policy and Terms of Service apply.

Hi there! How can we help you?

Contact us using the form below or give us a call.

Send Us A Message:

Do not fill in this field:

This site is protected by reCAPTCHA and the Google Privacy Policy and Terms of Service apply.

Hi there! How can we help you?

Contact us using the form below or give us a call.

Send Us A Message:

Do not fill in this field:

This site is protected by reCAPTCHA and the Google Privacy Policy and Terms of Service apply.

Do not fill in this field:

This site is protected by reCAPTCHA and the Google Privacy Policy and Terms of Service apply.

Do not fill in this field:

This site is protected by reCAPTCHA and the Google Privacy Policy and Terms of Service apply.

Do not fill in this field:

This site is protected by reCAPTCHA and the Google Privacy Policy and Terms of Service apply.

$

Do not fill in this field:

This site is protected by reCAPTCHA and the Google Privacy Policy and Terms of Service apply.